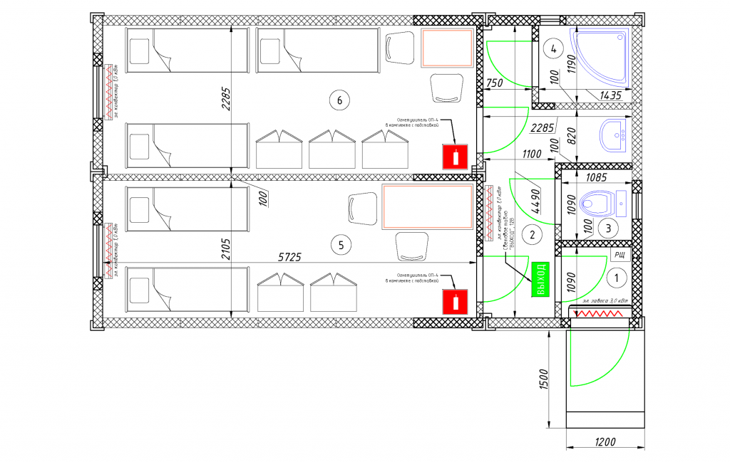
Модульное общежитие на 10 человек

Чертежи

Предлагаем различные модификации модульных общежитий, из которых вы можете выбрать наиболее подходящий вариант.

Чертеж
Модульное общежитие на 10 человек

Типовые решения

Предлагаем различные модификации модульных общежитий, из которых вы можете выбрать наиболее подходящий вариант.

Технические характеристики

Цена по запросу
Вместимость человек 10
Температурный режим от -60С до +45С
Тип отопления электро
Цвет корпуса по согласованию

Дополнительная комплектация

Стандартные характеристики и отделка может быть изменена при необходимости. Также по заказу клиента мы устанавливаем:

Системы отопления
Вентиляцию
Автономное водоснабжение
Сантехнику
Огнетушители
Мебель
Оборудование
Дополнительную отделку

Реализованные проекты

Высокое качество блок-модульных зданий S-modul подтверждается десятками успешно реализованных проектов

Общежитие на 257 человек и штаб строительства
Реализовано
ООО «УГМК-Застройщик», ПГТ Шерегеш, Кемеровская область
Общежитие на 257 человек и штаб строительства

Производство, поставка, монтаж, пусконаладочные работы. Угмк-застройщик крупный девелопер реализующий проекты в сфере туризма на курорте Шерегеш.

Здание АБК на строительстве объекта «Государственная филармония и Арктический центр эпоса»
Реализовано
«Группа «Вис», Якутск
Здание АБК на строительстве объекта «Государственная филармония и Арктический центр эпоса»

Монтаж здания и инженерных сетей, пусконаладочные работы

Устройство фундаментов для комплекса зданий вахтового поселка на месторождении «Ведугинское»
Реализовано
АО «Полиметалл», Красноярский край
Устройство фундаментов для комплекса зданий вахтового поселка на месторождении «Ведугинское»

Земляные работы, изготовление и монтаж металлоконструкций фундамента

Комплекс по производству минеральной ваты
Реализовано
Международный концерн «Дорхан», с. Криводановка, Новосибирская область
Комплекс по производству минеральной ваты

Строительство комплекса по производству минеральной ваты площадью 15 000 м2. Устройство фундамента, монтаж здания и инженерных сетей, устройство полов, монтаж технологического оборудования. Пусконаладочные работы.

Комплекс по производству минеральной ваты
Реализовано
Международный концерн «Дорхан», г. Можайск, Московская область
Комплекс по производству минеральной ваты

Строительство комплекса по производству минеральной ваты площадью 25 000 м2. Устройство фундамента, монтаж здания и инженерных сетей, устройство полов, монтаж технологического оборудования и производственных линий.

Строительство быстровозводимых корпусов для детского оздоровительного лагеря
Реализовано
Госзаказ в партнерстве с МК Дорхан, г. Воронеж
Строительство быстровозводимых корпусов для детского оздоровительного лагеря

Монтаж здания и инженерных сетей, пусконаладочные работы.

Строительство складского здания со встроенными помещениями АБК для промышленно —
 логистического парка
Реализовано
Международный концерн «Дорхан», Казань
Строительство складского здания со встроенными помещениями АБК для промышленно —
 логистического парка

Устройство фундаментов, монтаж здания.

Строительство гаража с административной зоной, бытового блока на территории Южно-Тамбейского ГКМ
Реализовано
ОАО «Ямал СПГ», п. Сабетта, Ямало-Ненецкий автономный округ
Строительство гаража с административной зоной, бытового блока на территории Южно-Тамбейского ГКМ

Инженерные изыскания, проектирование с прохождением экспертизы проектной документации и результатов инженерных изысканий

Реализовано
Фельдшерско-акушерские пункты

С 2020 года успешно построили 17 фельдшерско-акушерских пунктов на территории Новосибирской и Омской областей, а также в Алтайском крае и Республике Алтай.

Все реализованные проекты

Как мы работаем

01.
Заполните форму на нашем сайте или позвоните нам, чтобы обсудить ваши потребности и задать любые вопросы.

Мы всегда готовы помочь вам!

02.
После получения вашей заявки, наш специалист свяжется для проведения подробной консультации.

03.
Далее мы подготовим коммерческое предложение с указанием этапов и сроков работ.

04.
После согласования всех деталей, заключаем договор и приступаем к выполнению работ.

Компактное планировочное решение для полностью автономного проживания десяти человек с изолированным санузлом, душевой, умывальником и теплым тамбуром. Размещение персонала в двух помещениях на двухъярусных кроватях